查看客戶評價
SERVICE/ 服務
創造舒適,激發創新 讓辦公環境展現品味與風格
Design 辦公裝修設計
- 設計 & 設計出圖蓋章(甲級)
- 圖紙深化/消防設計出圖/結構出圖
- 圖紙 & 施工圖審查
- 審圖合格證/機電/市政/鋼結構出圖蓋章。
Qualifications 施工資質齊全
- 建筑工程施工總承包
- 一/二級注冊建造師持證上崗
- 裝修/市政/機電/鋼結構
-
設計資質齊全
-
施工資質齊全
-
辦公樓裝修設計
-
消防報審設計
-
裝修報建
-
竣工驗收
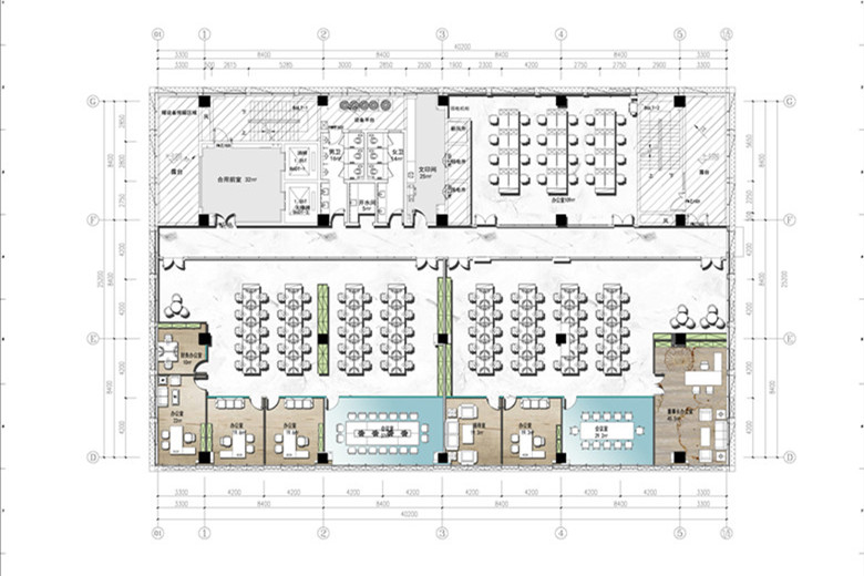
上海辦公室裝修設計/ 最新案例
一站式全過程辦公室裝修設計,建筑設計、消防設計、結構設計、給排水設計
查看全部案例
Design 辦公裝修設計
- 設計 & 設計出圖蓋章(甲級)
- 圖紙深化/消防設計出圖/結構出圖
- 圖紙 & 施工圖審查
- 審圖合格證/機電/市政/鋼結構出圖蓋章。
Qualifications 施工資質齊全
- 建筑工程施工總承包
- 一/二級注冊建造師持證上崗
- 裝修/市政/機電/鋼結構
-
設計資質齊全
-
施工資質齊全
-
辦公樓裝修設計
-
消防報審設計
-
裝修報建施工許可
-
竣工驗收消防驗收
上海辦公室裝修/ 設計服務企業
創意設計,為您的辦公室增添靈感"個性化定制,讓辦公室與您的品牌一致"
辦公室裝修/ 新聞
古都簽約客戶——讓價值共享,記錄企業發展腳步
18

12
22

10
05

09
31

07



































